muesco

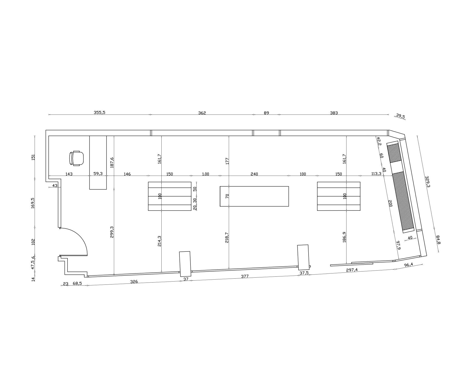
During my internship, I developed a project focused on the design of a store dedicated to products from Alcalá la Real. I was responsible for the furniture design and for creating visual imagery that clearly illustrates the evolution and materialization of the project throughout its real execution.

In addition, I participated in defining the spatial concept of the establishment, selecting materials, color palettes, and construction solutions consistent with the cultural identity of the region. I worked on the development of technical drawings, renderings, and digital models that supported decision-making throughout the design process.